Kodaňská
Bydlení na dobrém místě
Toggle navigation
Lokalita
Lokalita
Doprava
Okolí
Pronájem
Rezidenční
Komerční
Foto
Standardy
Co nabízíme
Úvaha o bydlení
Kontakt
Praguenest
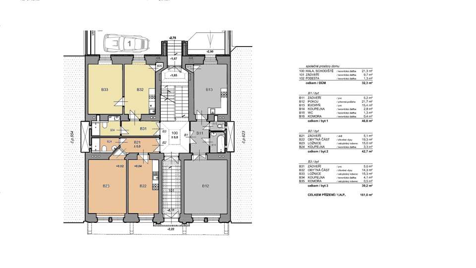
Byt č. 01